Work
Blog
Menu
RV Build
Work
Blog
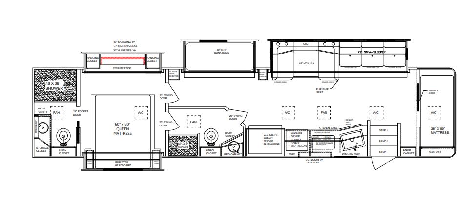
45' Peterbilt 567
Progress as of May 10th
prev
/
next
Back to Work
33
45' Peter